A Family Retreat at the Water's Edge

How the Lindal Elements system and Warmmodern Living’s design and project facilitation made the seemingly impossible a reality

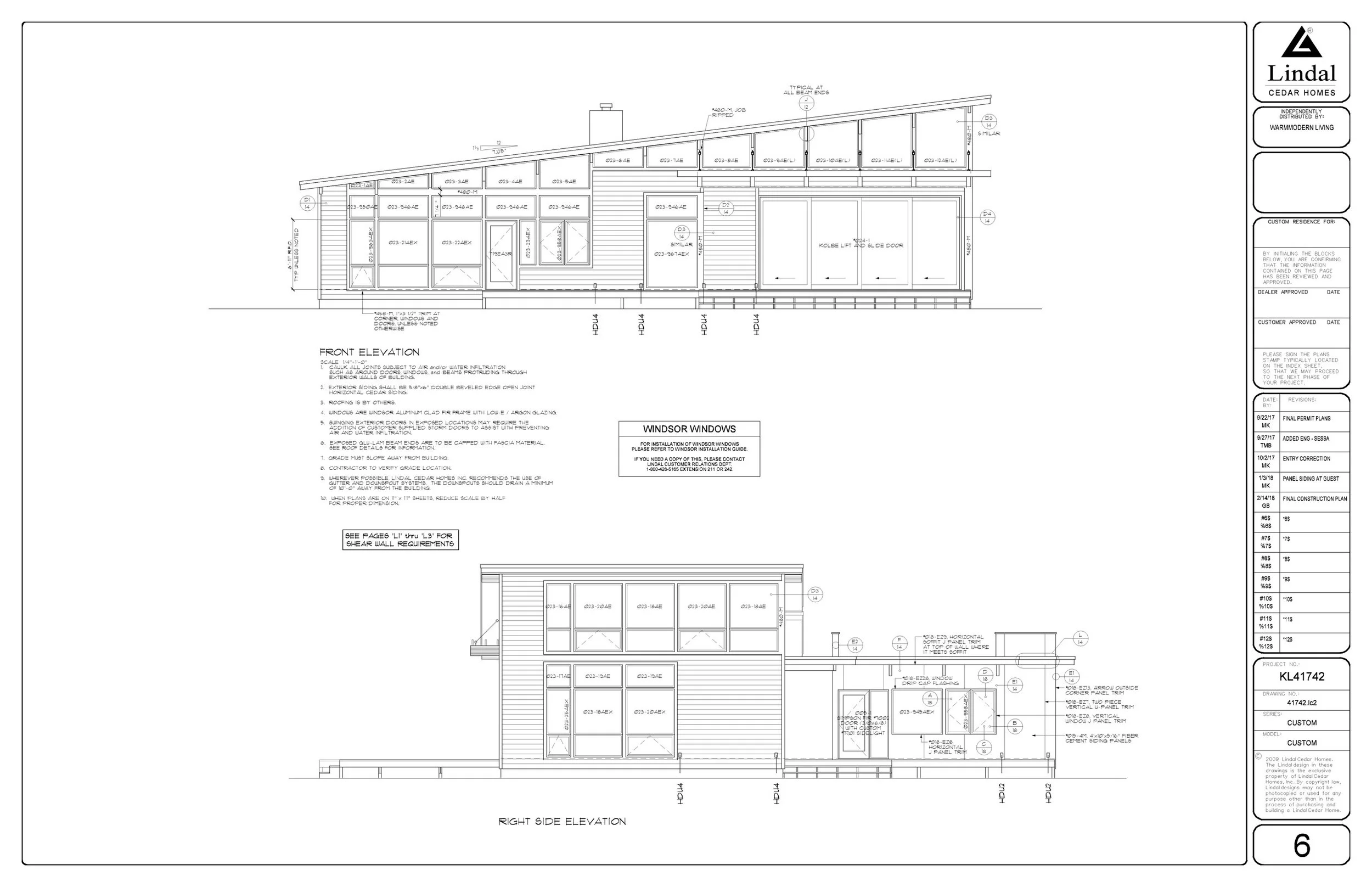
San Juan Island, WA   |   2200 Square Feet Main House + 1000 Square Feet Bunkhouse

In the 1980’s our client couple, then in their thirties, purchased a 1200 square foot beach house on San Juan Island in Puget Sound. Two hours from Seattle by car and ferry, the house quickly became the nearly weekly retreat for cherished family time for the parents and their two young sons. They could step off their deck and into the cool water of Puget Sound barely twenty feet from the house. Family board games on the deck, cook outs, and bonfires on the beach were woven into the fabric of this family’s life.

Today, this family circle has grown from four to thirteen members, including seven grandchildren. Members of their extended family often join in the cherished weekend rituals. The family has long outgrown the original two-bedroom cottage. “Someday” they’d build a new beach home with enough room for the entire family.

“Someday” came when the County announced that a previously approved doubling of the required building setback from the water in the county would go into effect in “about four months,” and only those projects with building permit applications predating the change would be exempt from the new setback regulation. 

Our client promptly contacts Lindal Cedar Homes and Warmmodern Living.

 

The ideal client

Ours was the ideal client for such a challenge. Their ability to evaluate questions and make sensible decisions; their willingness to seek and accept professional advice; their love of family; and the joyful approach to the work required became the foundation on which their project is now being built. 

 

The Design Program

 1.  To build a family retreat at the same distance from the water as the existing cottage that is large enough to comfortably with decks outside every communal space.   

 2.  To ensure privacy for all family members of all generations and their guests. The design will include four independent zones, each with its own direct access to the outdoors;  

  • A main house for the clients that will include a master suite and office, and the main gathering space for the entire family and guests (up to 20 people), a great room with a kitchen that accommodates several cooks, and direct access to a large deck where  the entire family and guests can lounge, play, and dine at the water’s edge.
  • A guest suite (bedroom, bath and living room), connected to the main house by its own private deck.
  • A detached “bunkhouse’ about 75 feet away from the main house  for kids and grandkids. It will include two independent suites, similar in size to the guest suite, on a second story (for water views,) above a large ground level bunkroom. kitchenette and outdoor cooking and dining terrace.

Our personal and professional experience strongly suggests that nothing encourages frequent multi-generational family weekends together more  than the ability to not be together. The ability to enjoy a quiet nap after a day at the beach or to play loud hip- hop music and dance after dinner when the rest of the family is winding down quietly all balance the fun of being together as a full family.  

3.  The large family great room in the main house must capture summer sunsets as breathtakingly as sitting out on the deck.

On my first visit to the client’s site on San Juan Island, I was treated to a sunset extraordinaire and was assured that this feast for the eyes was a common occurrence throughout the year (this image has not been photoshopped in any way). Capturing the sunset view from the house is major design priority.

 4.  Design to the established budget

Predicting the cost accurately early in the design process is also a design priority, since any major re-design to cut costs will make the four-month goal from a blank sheet of paper to an engineered plan and filed permit application an impossibility. 

 

The Design Process

Week 1

In less than a week after we met on site, we present the first design concept to the clients. The notion of a single sloping roof that rises from the master bedroom end to a height of over two stories on the northwest end of the great room to capture the sunsets full frame.

We feel a sense of accomplishment when we “test” the concept for groups as small as 2 and as large as 20. Most everything is in the right place. We need more storage; the two upper bunkhouse suites should have their own private entrances and small private decks; the office in the main house will have a glass door to the deck; and the fixtures in the master bath will reorganized

By the end of the second week we present the second concept drawing, which is approved. We make important decisions about the types of siding, windows, wood liner (for the underside of the sweeping roof and deep exterior roof overhangs).

 

Week 3

We send the concept drawings, along with a draft spec for each Lindal component, to Lindal Design to refine, size the beams and windows and to prepare a well dimensioned set of floor plans and elevations.

We begin to discuss finishes so that I can establish realistic allowances for the builder to use for finishes such as cabinets, countertops, flooring, plumbing fixtures, and more. 

We also invite two builders to prepare estimates on the Lindal sketch as soon as it is completed One is a builder who recently completed a complex Lindal project on a nearby island.

 

Week 5

Using the efficient Lindal Elements system, the company’s senior designer prepares the eight-page sketch for this one-of-a -kind design from the catalogue of Elements parts, and that paves the way to complete the pricing more quickly — less than 10 days total for sketches and pricing!

We’ve prepared a detailed specification checklist for the builders to use, including critical quantities from the Lindal pricing (e.g. floor, roofing, and siding areas, door and window counts etc.) in order to simplify their task. We also provide the suggested allowance schedule for finishes, based on the level of finish the client prefers and can fit into their budget  

Week 7

At the end seven weeks, the Lindal price and builder estimates are completed.  We present them to the client and confirm that the total project cost is in line with their budget.  

For those who have never worked with a design professional or a design build firm to design andprice a one-of-a- kind home, allow me to editorialize and say that to have defined (and refined) the design and presented the client with a thoughtful and realistic estimatee in six weeks is nothing less than extraordinary in a world where that can take six months to a year at a cost 10 times the Lindal design fee. The secret is the Lindal Elements system that I created with the Lindal design group specifically to enable clients to confidently answer the gnawing questions… ’Will I love the design, and will I be able to afford it?” early in the process.

The expeditor works with the County on site-related tasks that must be completed before a building permit can be issued; the design of an upgraded septic system, studying the soil in any area to be disturbed for Native American artifacts and the shoreline water for endangered aquatic life. If either are found, development of the site may be restricted and daily inspection of the site may be required.

 

Week 9

The Lindal sketches, specs and pricing have been updated with minor revisions .We provide the client with a series of nine 3D massing models that depict the buildings'’ relationship to each other and to the water to make certain that the client fully understands how these important aspects pf the design  have been resolved. The client  can now “see” what we've created, and they are more eager than ever to begin.  As soon as the site is deemed “clean,” they will sign their Lindal material contract so that the production of detailed permit plans and structural engineering can commence.

By the end of the week, the expediter receives word from the County that the site is “clean” and can be developed as planned. The full team convenes at the site, stakes out the location of each structure and the driveway, and re-confirms which few trees will be removed to open up the views and which will be replanted elsewhere on the site.

The client is pleased to sign their Lindal contract, confident in their understanding of the design and its cost. We have approximately seven weeks until the shoreline setback changes, and Lindal agrees to advance the permit plan completion date to ensure that we will be to file the permit application before the change become effective.

Week 10

The preparation and engineering of the detailed permit plans will require six weeks, and we make good use of the time. 

The siding (two types), exterior trim, and wooden ceiling liner are custom pre-stained on all six sides for enhanced performance in the client’s choice of colors. The aluminum clad windows are available in over forty cladding colors. We develop two color palettes, and the pre-finisher prepares samples of the specified material finished in the candidate colors. We assemble two color boards for the client to study on-site in changing daylight conditions. After fine tuning the finish on one siding, the client makes the final selections They also select exterior and interior door and door hardware styles and interior door and door hardware styles from extensive range of options that span the modern/transitional/traditional spectrum.

The builder prepares his contract, reviews it with the client, and it is signed.

Final arrangements are made to donate the existing cottage to a charity, remove it from its foundation and transport it by barge to a new location.

 

Week 16

The 43 page Lindal permit plans, fully dimensioned with copious easy to understand assembly details, foundation plans, stamped by Lindal’s structural engineer, are completed!

The expeditor files the completed application for the building permit. We are all elated and relieved!

The shoreline setback change becomes effective a few weeks later.

 

Week 31

Fifteen weeks after the application was filed, the County issues the building permit, and the builder breaks ground.   

Whether you have a critical deadline or not, Warmmodern Living will listen caringly and will thoughtfully provide you with a design this is well suited to your site, your lifestyle, and your budget. The Lindal Elements system will enable us to present you with plans and turnkey estimates early in the planning process and will add efficiency to the process from our first meeting through to completion.