• michael harris
    • tanya nachia somanna
    • about lindal
    • lindal showcase
    • lindal interior gallery
    • the lindal experience
    • the preeminant prefab
    • the five p's
    • product
    • personalization
    • process
    • price
    • predictability
    • current projects
    • professional collaborations
  • testimonials
    • ideas to build on
    • blog index
  • events
    • contact
    • resource links
Menu

warmmodern living

Street Address
City, State, Zip
(844) WARM-MOD

Your Custom Text Here

warmmodern living

  • about
    • michael harris
    • tanya nachia somanna
  • lindal homes
    • about lindal
    • lindal showcase
    • lindal interior gallery
    • the lindal experience
    • the preeminant prefab
  • process / pricing
    • the five p's
    • product
    • personalization
    • process
    • price
    • predictability
  • projects
    • current projects
    • professional collaborations
  • testimonials
  • blog
    • ideas to build on
    • blog index
  • events
  • connect
    • contact
    • resource links

A Modern Suburban Treetop Nest

June 19, 2019 Michael Harris

Designed to perch inconspicuously on a steep hillside with a water view, this modern design is supported by a long stone wall on the uphill side and concrete piers on the downhill side.

Clad in charcoal grey steel with vertical ribs with aluminum clad windows of the same color, the house will quietly take its place on the wooded slope, barely visible from the road below.

In contrast, the interior will glow warmly with Lindal’s beautifully crafted Douglas fir beams and clear cedar liner with furniture-quality lacquer finish.

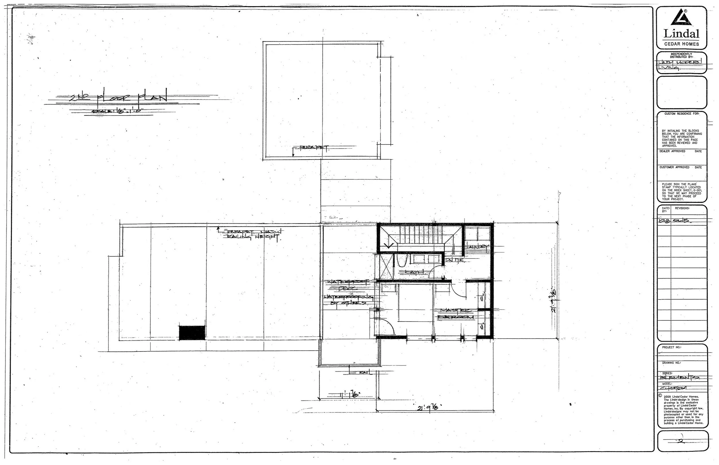
The main living level is bifurcated by a wide gallery hallway that terminates with a deck overlooking the view. On one side, a large open kitchen and great room space is fully transparent to the view with its treetop perch. Across the central gallery entry spine are two privately located bedrooms or offices, each with views that will distract.

An out-of-sight staircase leads to a sumptuous mater suite above and access for guests to a 300 square-foot rooftop deck with the community's best view, large enough for social gatherings and outdoor dining.

← Some Favorite Building Products, Part 1A Planning Process as Modern as the Designs it Creates →
You must select a collection to display.

Copyright 2025 warmmodern living  |  an independent Lindal Homes dealer